Na pozemku p. č. 1/1 naproti parkovišti byla zahájena stavba nové dětské skupiny (obdoba mateřské školky) pro 11–18 dětí. Součástí objektu je i kuchyně.

Obec pozemek před několika lety zakoupila s cílem rozšířit nabídku služeb pro obyvatele – a nový objekt tento účel beze zbytku splňuje. Celá stavba je navíc ze 100 % financována dotací MPSV a zahrnuje i přeložku el. vedení a velkou část ceny pozemku.
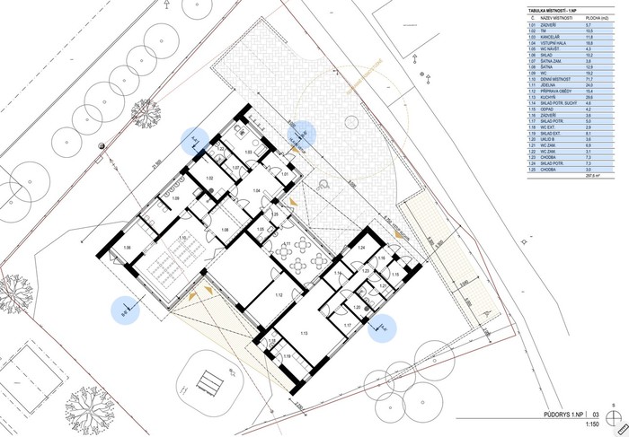
S projektem včetně vizualizace se mohli občané seznámit letos 16. dubna na veřejném projednání v Centru Caolinum. Tehdy byla realizace ještě nejistá, během léta ale projekt získal reálné obrysy.
Autory návrhu jsou architekti Ing. arch. Martin Březina a Ing. arch. Michaela Dostálová ze společnosti MEPRO s.r.o. Zhotovitelem stavby v hodnotě 18,45 mil. Kč bez DPH je na základě výběrového řízení společnost NATUR HOUSE s.r.o. z Ronova nad Doubravou.

První děti v nové skupince přivítáme už v roce 2026.
O postupu stavby a celého projektu vás budeme pravidelně informovat.